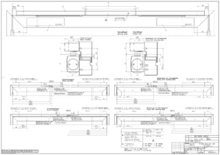
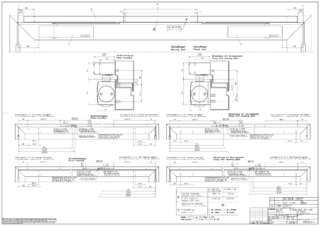
TS 5000 E-ISM ECline * Overhead door closer system with guide rail for barrier-free, easy-to-open double leaf doors up to 1250 mm leaf width in accordance with DIN 18040 with integrated closing sequence control and electric hold-open device
- System with two door closers TS 5000 ECline and an E-ISM guide rail
- Closing force of EN3-5 with variable adjustment
- Operating voltage 24 V DC
- Can be used for right and left hand doors without conversion
- The passive leaf is electrically held open in the guide rail, hold-open area 80°-130°.
- Active leaf is held open by a hold-open magnet or door closer with free swing function
- Closing sequence control holds the active leaf in the waiting position until the passive leaf is closed
- Hydraulic latching action which accelerates the door shortly before it is closed
- Closing speed can be individually adjusted
- Integrated back check, slows down doors that are thrown open forcefully
- Visual closing force display for easy control of the setting
- All functions can be adjusted from the front
- Query that the door leaf is held open via a potential-free contact on the electric hold-open device
Application Areas
- Fire and smoke protection doors
- Right and left double leaf single-action doors
- Single-action doors up to 2500 mm hinge clearance, overlength up to 3200 mm
- Symmetrical and asymmetrical division of door possible
- Door leaf installation hinge side
- Hold-open systems with integrated hold-open device
Technical data
| TS 5000 E-ISM ECline | |
| Barrier-free in accordance with DIN 18040 up to leaf width (max.) in mm | 1250 mm |
| Leaf width (max.) | 1250 mm |
| Type of installation | Door leaf installation hinge side |
| Opening angle (max.) | 180 ° |
| Input voltage | 24 V DC |
| Minimum hinge clearance | 1300 mm |
| Minimum passive leaf width | 400 mm |
| Suitability for fire protection doors | Yes |
| Closing force adjustable | Yes, stepless |
| Adjustable closing speed | Yes |
| Latching action adjustable | Yes, via valve |
| Back check integrated | Yes, hydraulically adjustable |
| Position of closing force adjustment | Front |
| Visual closing force display | Yes |
| Hold-open function | Electrical |
| Hold-open device on the active leaf / passive leaf | Yes / Yes |
| Hold-open range | 80 ° - 130 ° |
| Closing sequence control integrated | Yes |
Downloads
LABELLING OBLIGATION: © GEZE GmbH
Variants & Accessories
* Notice about the products displayed
The products mentioned above may vary in form, type, characteristics and function (design, dimensions, availability, approvals, standards etc.) depending on the country. For questions please contact your GEZE contact person or send us an E-Mail .