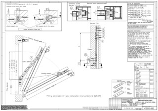
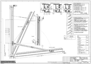
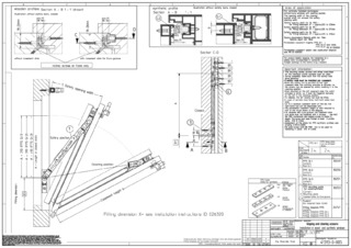
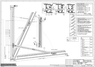
Gripping and cleaning scissors (FPS) * For fanlight openers for additional protection of bottom-hung leaves
- Restricts motion of the leaf following unhinging of the scissor (gripping position)
- High safety due to multiple gripping positions
- Leaf and frame elements can be separated for improved transport and installation
- Two gripping and cleaning scissors are needed per window leaf
- Available in three sizes
Application Areas
- Can be used for OL 90 N, OL 95 and OL 320
- Vertically installed bottom-hung rectangular windows
Downloads
LABELLING OBLIGATION: © GEZE GmbH
LABELLING OBLIGATION: © GEZE GmbH
Variants & Accessories
* Notice about the products displayed
The products mentioned above may vary in form, type, characteristics and function (design, dimensions, availability, approvals, standards etc.) depending on the country. For questions please contact your GEZE contact person or send us an E-Mail .