TS 3000 V BC * Overhead door closer with guide rail for single leaf doors with a leaf width up to 1100 mm
- Closing force of EN 2-4 with variable adjustment
- Can be used for right and left hand doors without conversion
- Integrated back check, slows down doors that are thrown open forcefully
- Hydraulic latching action which accelerates the door shortly before it is closed
- Closing speed can be individually adjusted
- All functions can be set from the front (except for closing force)
Application Areas
- Fire and smoke protection doors
- Right and left single-action doors
- Single-action doors up to 1100 mm leaf width
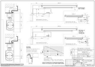
- Door leaf installation hinge side
- Door leaf installation opposite hinge side
- Transom installation hinge side
- Transom installation opposite hinge side
Technical data
| TS 3000 V BC | |
| Closing force in accordance with EN 1154 | EN 2 - 4 |
| Barrier-free in accordance with DIN 18040 up to leaf width (max.) in mm | 1100 mm |
| Leaf width (max.) | 1100 mm |
| Type of installation | Door leaf installation hinge side, Door leaf installation opposite hinge side, Transom installation hinge side, Transom installation opposite hinge side |
| Opening angle (max.) | 180 ° |
| Suitability for fire protection doors | Yes |
| Closing force adjustable | Yes, stepless |
| Adjustable closing speed | Yes |
| Latching action adjustable | Yes, via valve |
| Back check integrated | Yes, hydraulically adjustable |
| Position of closing force adjustment | At the side |
| Hold-open function | Optional |
Downloads
Variants & Accessories
* Notice about the products displayed
The products mentioned above may vary in form, type, characteristics and function (design, dimensions, availability, approvals, standards etc.) depending on the country. For questions please contact your GEZE contact person or send us an E-Mail .