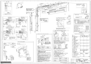
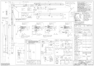
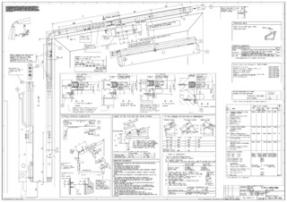
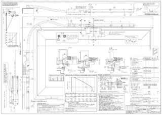
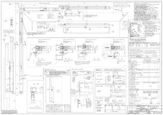
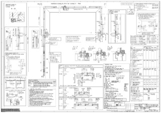
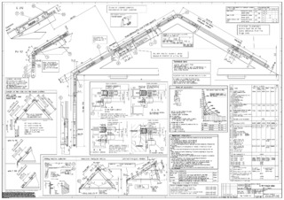
OL 90 N top-hung outward-opening

Hand lever * Hand lever for the operation of the window

Downloads

Variants & Accessories

Contact

GEZE Central 900-730-440 GEZE Service 900-730-442