GEZE Boxer ISM-EFS * Sistema cierrapuertas integrado para puertas de doble hoja con regulación de la secuencia de cierre y función de movimiento libre eléctrica
- Sistema de dos cierrapuertas GEZE Boxer EFS- 4-6 y GEZE Boxer 2-4 o 3-6 con guía corredera ISM
- Para puertas mano izquierda y mano derecha sin necesidad de modificación
- El cierrapuertas está empotrado en la hoja de la puerta o en el marco y satisface las máximas exigencias de diseño
- La regulación de la secuencia de cierre mantiene la hoja activa en la posición de espera hasta que se haya cerrado la hoja pasiva
- La función de movimiento libre permite acceder a la puerta con poco esfuerzo
- La función de retención confortable bloquea la puerta al final del área de movimiento libre
- Unidad de control del detector de humo conectable, cuya señal permite cerrar la puerta por sí misma en caso de incendio
- La amortiguación a la apertura integrada frena fuertemente las puertas
- Golpe final hidráulico que acelera la puerta brevemente antes del estado cerrado
- La velocidad de cierre se puede adaptar individualmente
- Todas las funciones se pueden ajustar estando montado
Áreas de aplicación
- Puertas cortafuegos, certificado de idoneidad con la puerta requerido
- Puertas batientes de doble hoja
- Posible división de puerta simétrica y asimétrica
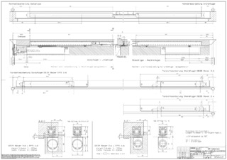
- Puertas batientes con una distancia entre bisagras de hasta 2800 mm y una anchura de hoja de 1400 mm, para pesos de hoja de hasta 180 kg
- Distancia mínima entre las bisagras 1300 mm, anchura mínima de la hoja pasiva 540 mm
- Para grosores de hoja de puerta a partir de 50 mm
- Montaje integrado
- Sistema de retención de apertura con función de apertura mantenida integrada con movimiento libre
- Entradas accesibles conforme a DIN 18040
Especificaciones del producto
| GEZE Boxer ISM-EFS | |
| Fuerza de cierre según EN 1154 | EN 2 - 6 |
| Accesible según DIN 18040 con un ancho de hoja de hasta (máx.) en mm | 1400 mm |
| Ancho de hoja (máx.) | 1400 mm |
| Peso de hoja (máx.) | 180 kg |
| Tipo de instalación | Enrasado |
| Ángulo de apertura (máx.) | 120 ° |
| Distancia mínima entre las bisagras | 1300 mm |
| Ancho mínimo de la hoja pasiva | 540 mm |
| Idoneidad puertas cortafuego | Si |
| Fuerza de cierre ajustable | Sí, de forma continua |
| Velocidad de cierre ajustable | Si |
| Golpe final ajustable | Sí, por válvula |
| Amortiguación de apertura integrada | Sí, de ajuste hidráulico |
| Posición ajuste de la fuerza de cierre | Arriba |
| Función de apertura mantenida | Opcional |
| Mecanismo de retención en la hoja activa / hoja pasiva | Si / Opcional |
| Regulación de secuencia de cierre integrada | Si |
Descargas
Variantes y accesorios
* Nota acerca de los productos mostrados
Los productos mencionados anteriormente pueden variar en forma, tipo, características y función (diseño, dimensiones, disponibilidad, aprobaciones, normas, etc.) dependiendo del país. Para cualquier consulta, contacte con su persona de contacto de GEZE o envíenos un E-Mail .